Обяви За нас Контакти
Продава 3-СТАЕН
област Бургас, гр. Царево
кв.Василико
127 237 €
248 853.94 лв.

(1 167 €, 2 282.45 лв./m2)
Цената е с включено ДДС
История на цената
Коригирана в 12:22 на 21 октомври, 2025 год.
Обявата е посетена 3185 пъти.
Площ:
109 m2
Етаж:
2-ри от 5
Строителство:
Тухла, 2023 г.

Описание на имота:


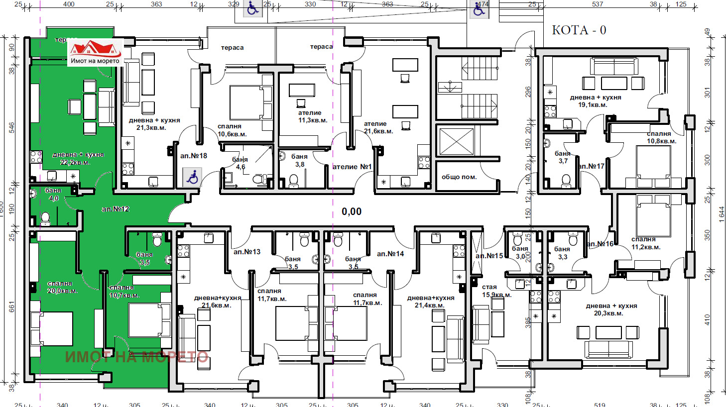
Имот на морето продава без комисионна ТРИСТАЕН АПАРТАМЕНТ в гр. Царево, кв. Василико. Жилището е с площ 108,75 кв. м, разположен на партерен етаж, в новостроящата се сграда, която ще бъде завършена през 2024 год.
Апартаментът се предлага със степен на завършеност до етап тапа , но с възможност за довършване до етап ключ . Състои се от: Всекидневна с кухня, две спални, две тераси и два санитарни възела.
Сградата се намира на изключително удобно и комуникативно местоположение в града, в непосредствена близост до плаж Нестинарка . Разполага с асансьор, паркоместа, без такса поддръжка и складови помещения.
Предимства:
 Отлична локация
 Ново строителство с висококачествени материали
 Паркоместа
 Асансьор
 Без такса поддръжка

Прекрасна възможност за постоянно живеене в едно от най-живописните градчета по южното Черноморие или за ваканционен имот за отдих и почивка.
Виж всички обяви в imotnamoreto.bazar.bg или тук
Особености
Тухла
В строеж
Асансьор
С паркинг
Интернет връзка
Обзаведен
Видео наблюдение
Саниран
За контакт:
0899696004
Агенция:
ИМОТ НА МОРЕТО
0899696004
ИМОТ НА МОРЕТО logo
Медал за прослужено време
В imot.bg от 2021 г.
imotnamoreto.imot.bg
Адрес:
област Бургас, гр. Царево, ул. Пенека 2
ИЗПРАТИ ЗАПИТВАНЕ
ИЗПРАТИ ЗАПИТВАНЕТО

Продава 3-СТАЕН
област Бургас, гр. Царево
кв.Василико
Обява: 1c164901037783821

127 237 €
248 853.94 лв.
История на цената
(1 167 €, 2 282.45 лв./m2)

Цената е с включено ДДС
ЗАПАЗИ ОБЯВАТА

Местоположение: област Бургас, гр. Царево, кв.Василико